产品概述
BWG 光伏并网柜是承接逆变器与升压变压器或交流汇流箱与升压变压器的重要组成部分,此光伏并网柜的进线采用断路器输入或直接输入,输出采用断路器或负荷隔离开关,母线采用电镀或纯化后的母线连接,并提供二级防雷保护,系统额定电压最高为 AC690V,防护等级室内为 IP30、室外为 IP54; 二次测量及控制的电缆,电流为大于 2.5mm² 的电缆,电压为大 1.5mm² 的电缆,控制为大于 1.0mm²的电缆,测量电流互感器为 0.5 级的电流互感器,计量互感器为 0.2s 级的电流互感器。还可根据客户要求增加相关的功能等。此产品采用专业的电气设计、元件选型,使柜体内部结构安全、简洁、美观、方便现场接线及维护并保证设备长时间的稳定工作。
功能及特点
> 既可采用固定安装式设计;
> 采用本公司或国内品牌断路器和元件组合成功能单元,具有优良的技术性能,安全可靠;
> 可分别组成各种标准单元模块,供客户任意选用组装;
> 采用区域之间的隔离以及功能单元进线和出线之间的相互隔离,有效的加强安全防护性能;
> 组合装配式结构,框架的全部结构均用螺丝坚固连接,框架及门、面板均经磷化处理后静电喷塑处理,不喷塑部件全部镀锌并经钝化处理。 能满足各种元件的要求并能符合不同工作环境,达到相应的防护等级;
> 骨架采用优质钢板,骨架上可带有模数为 25mm 的孔,可供各种用途扩展,进线方式有上、下侧进线两种方式;
> 分断能力高、动热稳定性好,电气方案组合灵活方便、实用性强,主要参数达到国际水平;
> 重置轻,机械强度和装配精度高,外形美观。
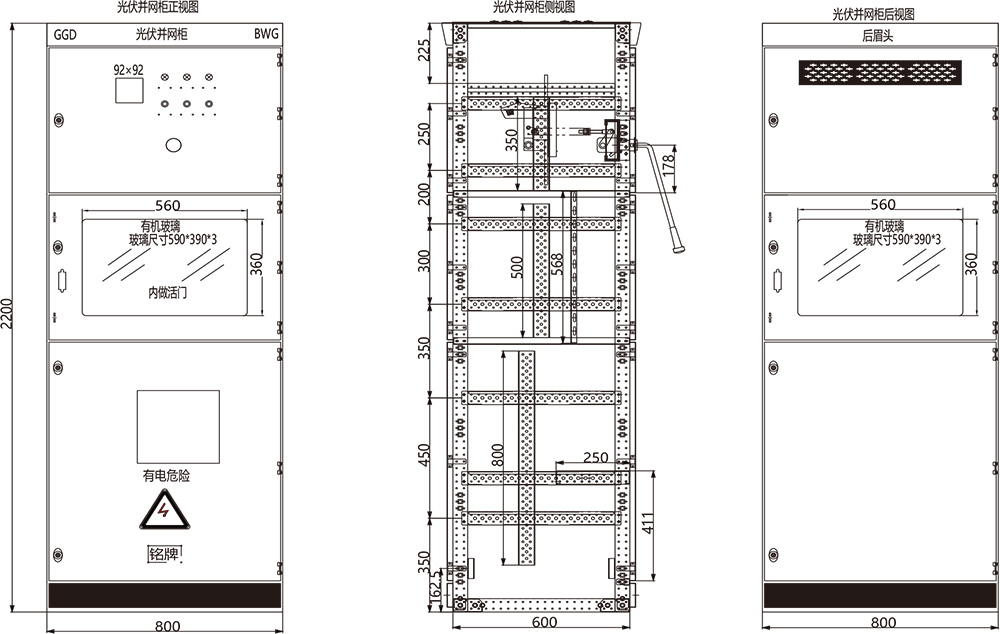
外形尺寸图

技术参数
| 产品型号 | BWG |
| 最高输入电压 | 800V |
| 额定频率 | 50Hz |
| 最大额定电流 | 3150A |
| 测量数据 | 三相电流、三相电压、有功功率、视在功率、功率因数、频率、电镀 |
| 通信方式 / 协议 | RS485 总线 / 标准的 MODBUS-RTU 协议 |
| 温湿度 | 工作温度:-40~+85℃ 湿度 95%,无凝露、无腐蚀性气体场所 |
| 海拔 | ≤ 4000m |
| 箱体材质 | 热镀锌钢板 / 不锈钢 / 冷轧钢板 |
| 防护等级 | IP30/IP40/IP54 |
| 体积(宽 × 高 × 深) | 2260mm×800mm×600mm |
| 安装方式 | 落地式 |