产品概述
XL-21 动力柜广泛用于发电厂及工矿企业中,在三相交流 500V 以下三相三线、三相四线、三相五线等配电系统中作动力或照明配电之用,系户内靠墙安装,屏前操作,屏前检修;箱体为全封闭结构,由 C 型材或 8MF 型材拼装而成。箱内采用新型旋转式负荷隔离开关,可带负荷操作,正面门上装有电压、电流指示仪表以及信号灯、按钮、转换开关等主令元件。本配电箱内采用新型组件,结构紧凑,造型美观大方,维护方便,多种接线方案可供用户选择。
型号及其含义

① | 箱式 |
② | 动力 |
③ | 防尘式 |
④ | 设计序号:1、2、3 |
| ⑤ | 主电路方案号 |
使用条件
> 环境温度:-5℃ ~+40℃,且 24h 内的平均温度不超过 +35℃;
> 海拔高度:不超过 2000m;
> 相对湿度:在周围空气温度为 +40℃时不超过 50%;在较低温度下可以有较高的相对湿度 (如:+20℃时为 90%),考虑到温度的变化允许产生适度的凝露;
> 设备安装时与垂直面的倾斜度应不超过 5°;
> 设备应安装在无剧烈振动、无冲击及无腐蚀的场所。
注 : 超过以上条件,可与我公司协商。
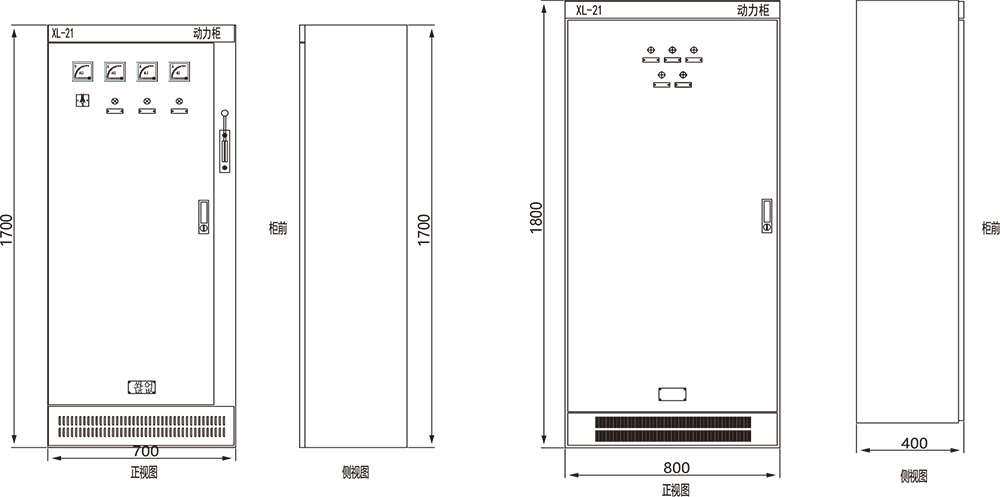
安装尺寸图

订货须知
订货时应提供下列技术资料:
> 产品的全部型号 ( 包括主电路方案号和辅助电路方案号 );
> 主电路系统图,柜体平面排列图;
> 辅助电路电气原理图;
> 柜内元器件清单 ( 主母线规格 );
> 柜体颜色,( 如无要求,则按浅驼灰色供货 ) 箱体尺寸;
> 其它与产品正常使用条件不符的特殊要求;
> 主母线规格未提供要求时制造厂按标准提供。
技术参数
| 项目 | 单位 | 数据 |
| 主电路额定电压 | V | AC:380 |
| 辅助电路额定电压 | V | AC:220,380 |
额定频率 | Hz | 50 |
| 额定绝缘电压 | V | 660 |
| 额定电流 | A | ≤ 800A |